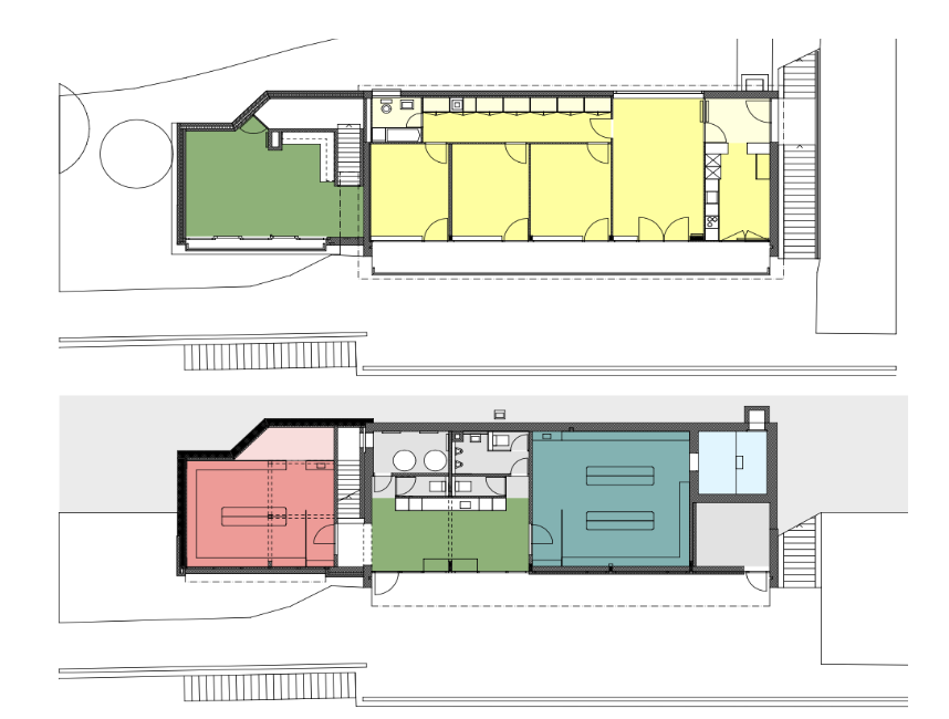
Wie an der a.o. Clubversammlung vom 23.9.2025 beschlossen, sammeln wir Spenden für die Totalsanierung mit räumlichen Anpassungen im EG des Clubhauses an der Rhyhalde:
Sämtliche Spenden ab CHF 100.- für dieses Projekt sind steuerlich im Kanton BS abzugsfähig (Schreiben Steuerverwaltung). Wir gehen davon aus, dass dies auch für alle anderen Kantone aufgrund des Steuerharmonisierungsgesetzes gilt, raten aber dazu, dies individuell abzuklären.
Einzahlungschein:



07:32
16:54



